Edingseweg 416, 9500 GERAARDSBERGEN

0
1
2
3
4
5
6
7
8
9
Beschrijving

TERRAIN DE PROJET POUR 2 APPARTEMENTS À VIANE

TERRAIN DE PROJET AVEC PLANS ET PERMIS POUR 2 APPARTEMENTS.

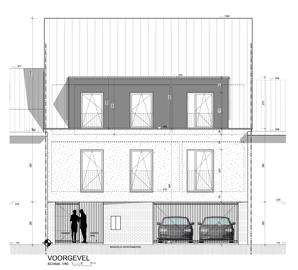
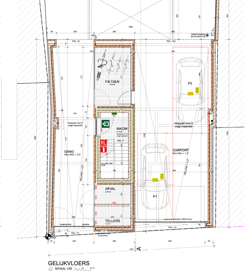
Il s'agit d'un rez-de-chaussée avec un hall d'entrée, des caves, un local pour vélos ainsi qu'un grand carport pour 2 voitures, ainsi qu'une bande de jardin.

Au premier et deuxième étage, on trouve 2 appartements avec la disposition suivante :

Hall d'entrée, WC invités, grand séjour lumineux avec cuisine ouverte et terrasse, débarras, salle de bain et 2 chambres.

Les plans sont déjà disponibles et seront fournis, ainsi que le permis de construire pour les 2 appartements.

Pour plus d'informations ou pour une visite, veuillez répondre à l'annonce, nous vous appellerons ensuite pour fixer un rendez-vous.

Prix: 150.000 €
TERRAIN DE PROJET AVEC PLANS ET PERMIS POUR 2 APPARTEMENTS.
4Slp.
298 m2
Afspraak plannen
Contactez-nous

Général
Prix 150.000 €
Revenu cadastral 2 €
Nombre de Chambre(s) 4 chr
Nombre de salle(s) de bain 2
Adresse Edingseweg 416, 9500 GERAARDSBERGEN
Superficie totale 298 m²
Superficie terrain 300 m²
Disponibilité Immédiate
Informations financières
Prix 150.000 €
Revenu cadastral 2 €
Droits d'enregistrement 18.000 €
Honoraires notaire 1.879 €
Honoraires notaire inc TVA 2.273 €
Total des frais 20.273 €
Prix total 170.273 €
Certificat energétique
PEB Pas applicable
Comfort
Chauffage Non communiqué
Cuisine Non communiqué
Aménagement du territoire
Droit de préemption possible Non
Permis de bâtir obtenu Oui
Citation pour infraction urbanistique Aucune mesure judiciaire de réparation ou mesure administrative imposée
Autorisation de lotissement Oui
Affectation Zone d'habitat
Certificat de sol Présent
G-score Classe D
P-score Classe D
situé dans une zone potentiellement inondable
Héritages Non
Composition
Hall d'entrée 6,6 m²
Cuisine 12,6 m²
Living 29,9 m²
Débarras 7,0 m²
Toilette 1 1,1 m²
Salle de bains 1 9,4 m²
Chambre à coucher 1 12,5 m²
Chambre à coucher 2 22,0 m²
Terrasse 16,3 m²
Hall d'entrée 4,1 m²
----- 53,9 m²
Débarras 2,9 m²
Débarras 2,9 m²
Débarras 8,9 m²
Hall d'entrée 6,6 m²
Living 30,0 m²
Cuisine 12,0 m²
Salle de bains 1 9,4 m²
Chambre à coucher 1 10,9 m²
Chambre à coucher 2 16,8 m²
Débarras 5,0 m²
Toilette 1 1,1 m²
Terrasse 16,3 m²

Propriétés connexes

Villa magnifiquement rénovée avec 4 chambres, garage et piscine Cette villa rénovée, situé
ventes
649.000 €
4Slp.
345 m2
Maison neuve prête à emménager avec 3 chambres et jardin à deux pas du domaine De Gavers D
ventes
488.500 €
3Slp.
183.35 m2
Maison Neuve BEN Exceptionnelle avec 6 Chambres, 2 Salles de Bain et Garage Prête à Emménage
ventes
433.884 €
6Slp.
235 m2
Superbe maison de maître rénovée avec 5 chambres, 2 salles de bains et jardin, au cur de Gra
ventes
425.000 €
5Slp.
197 m2

Vous n'avez pas trouvé ce que vous cherchiez ?

Envoyez-nous vos souhaits et nous chercherons pour vous.

Restez informé