7860 LESSINES
INSTAPKLARE NIEUWBOUWWONING MET 3 SLP, TUIN EN GARAGE
Deze energiezuinig, rustig gelegen woning met een prachtig zicht op de groene landschappen.
Via snelle verbindingswegen naar Geraardsbergen(10-15min), Brussel, Edingen, Halle.
Deze recente woning is als volgt ingedeeld.
Via de inkomhal komt men terecht in de ruime lichtrijke living met open keuken en prachtig zicht op de tuin en de landschappen.
Gastentoilet aanwezig in de inkomhal.
Er is een garage aanwezig met sectionaalpoort.
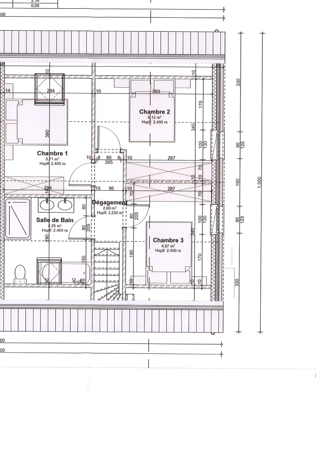
Op de eerste verdieping treft men 3 slaapkamers en een badkamer voorzien van ligbad, inloopdouche, toilet en lavabomeubel.
Er zijn zonnepanelen aanwezig (6 x 415Wp) en aanvoer gas via een ondergrondse propaantank in de tuin.
Elektrische installatie conform arei.
De woning zal verkocht worden onder 3% registratierechten en niet onder het btw stelsel wat voordelig is voor de kopers.
Voor inlichtingen of bezoek gelieve op de advertentie te reageren, wij bellen u zelf op om een afspraak in te plannen.
3Slp.
130 m2
Niet gevonden wat u zocht?
Heeft u uw droomhuis niet gevonden?
Vul hier uw zoekopdracht in!






























